本项目 星空网页版登录入口南宁市东宝路1-1号、2号小区危旧房改住房改造项目 已取得南宁市青秀区发展和改革局项目备案核准建设(项目代码:2111-450103-04-01-129025 ),广西壮族自治区住房制度改革委员会同意改造的批复(桂房改[2021]35号),南宁市行政审批局建筑工程施工许可(450100202305170101),现拟对星空网页版登录入口南宁市东宝路1-1号、2号小区危旧房改住房改造项目东宝路2号前期物业服务项目进行遴选,有关事项公告如下:
一、项目名称、编号:
遴选项目名称:星空网页版登录入口南宁市东宝路1-1号、2号小区危旧房改住房改造项目东宝路2号前期物业服务
遴选项目编号:2111-450103-04-01-129025-6
二、项目概况:
(一)建设单位:星空网页版登录入口(原名为广西广播电视大学,属区直驻邕高校)。
(二)项目名称:星空网页版登录入口南宁市东宝路1-1号、2号小区危旧房改住房改造项目。
(三)项目位置:南宁市青秀区东宝路1-1号、2号。
(四)项目规模:总建筑面积84457.04平方米。
(五)项目类型:高层住宅。
(六)商铺交付标准:按毛坯房交付。
(七)项目总投资:约4.06亿。
(八)工程进度:项目2021年12月获得自治区住房制度改革委员会关于同意星空网页版登录入口对南宁市东宝路1-1号、2号小区进行危旧房改住房改造的批复,2022年1月取得南宁市自然局批复规划总平及工程建设规划许可证,并于2023年5月取得建筑工程施工许可证,同年8月动工建设。
目前施工进度:2号楼已完成主体32层,1号楼已完成主体27层,预计2024年10月主体封顶,2025年3月竣工交付。
三、前期物业管理的基本情况
(一)前期物业管理的基本情况
1、占地面积:
①红线内:9486.91平方米
②红线外(临时道路):1134平方米
合计:10620.91平方米
2、建筑面积:
①1号楼:
住宅(3-32层)物业收费面积27829.8平方米;
商业配套(1-2层)物业收费面积:1951.14平方米;
其他配套(1-2层):党群服务中心375.96平方米,婴幼儿照护服务场地18.63平方米,公厕63.1平方米,物业管理用房152.99平方米,社区居家养老服务用房376.32平方米。
②2号楼:
住宅(1-33层)物业收费面积:23241.61平方米;
其他配套(1层):婴幼儿照护服务场地83.13平方米,消防控制室53.43平方米,社区管理用房81.01平方米。
③地下室(3层):18701.66平方米。
3、户数:
①住宅:共计413户,其中:1号楼219户,2号楼194户;
②商铺:位于1号楼1~2层,共计36间。
4、车位:
①地下室机动车位:
地下室物业收费共399个车位,可停车467辆(其中:机械停车位39个停86辆车;子母车位21个停42辆车)
②地面公共收费机动车位:52个(按改造后的布置:东宝路2号小区西侧临时道路改造28个+中庭改造绿化剩余车位24个)
③地面非机动车位:272个
5、其他:
①电梯每栋4台,共计8台;
②地下室采用地坪漆地面;
③机动车出入口:红线内2个(其中:一个在东宝路,一个在临时道路);红线外(临时道路与东宝路交汇)1个。
④绿地面积:2081.81平方米;
⑤化粪池:100立方米1个、75立方米1个;
⑥蓄水池:90立方米2个。
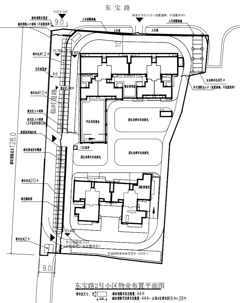
(二)东宝路2号小区物业管理平面布置
根据已审批东宝路2号小区规划总平图,结合东宝路2号小区实际情况,竣工验收、规划核实后,东宝路2号小区物业管理平面布置如下:
1.商业位于1号楼一、二层,商铺与街道直通,不设围栏。
2.住宅区东、南面设置铁艺栏栅与周边小区隔离,西面临时道路利用原围墙与国税小区隔离,住宅区临时道路部分种植密集植物与临时道路隔离,东面设置道闸栏栅与商业隔离。
3.为物业管理方便,小区只设一个车辆行人主出入口,位于1号楼2号楼临地下室入口处,设置门卫岗亭,24小时值守。
4.原规划总平图消防环道及出口原则不取消,改为设置自动道闸满足消防要求。小区1号楼东面设置的车行消防出入口同时设置行人次出入口,自动道闸及行人次出入口不设岗亭,通过刷卡系统控制。
5. 1号楼一、二单元大堂通向东宝路方向设置门禁系统,仅允许业主进出。
6.小区中庭原生态停车位改为绿地绿化。
7.小区电动单车、自行车全部集中在南边围墙处,电动单车设置集中充电系统。
8.临时道路改造后,布置28个停车位,停车位四分之一在小区用地用于安装充电桩,四分之三在临时道路,停车位对外营业,部分允许安装高功率充电桩,部分允许进行汽车美容业。
9.东宝路2号小区物业管理平面布置见下图:

(三)物业收费项目:
①住宅物业收费面积合计:51071.41平方米。
②商业物业收费面积合计:1951.14平方米。
③地下室管理收费停车位:普通车位339个,子母车位21个,机械车位39组。
(四)其他
地面公共收费机动车位数量、收费标准由建委会或业委会与中标物业公司根据实际情况商定。
四、遴选需求(前期物业管理服务内容):
包括但不限于以下内容:
1.客服;
2.工程维护;
3.保安监控;
4.保洁;
5.绿化。
五、竞标人资格:
(1)在南宁市区域注册成立,具有独立法人(或负责人)资格;
(2)具备有效的营业执照;
(3)本项目不接受联合体竞标;
(4)本项目不接受未购买本招标文件的供应商竞标;
(5)单位负责人为同一人或者存在直接控股、管理关系的不同供应商,不得参加同一合同项下的本采购活动。
(6)对在“信用中国”网站(www.creditchina.gov.cn)、中国政府采购网(www.ccgp.gov.cn)等渠道列入失信被执行人、重大税收违法案件当事人名单、政府采购严重违法失信行为记录名单及其他不符合《中华人民共和国政府采购法》第二十二条规定条件的供应商,不得参与本次采购活动。
六、服务期
前期物业服务期为五年,从进场物业管理服务至合同完结止。
七、报名及遴选文件领取:
1.报名时间:2024年9月30日至2024年10月12日
2.报名方式:报名单位填写电子报名表(https://www.wjx.cn/vm/rhg5Lnx.aspx)并上传以下附件:
(1)企业营业执照;
(2)法人身份证或授权代理人身份证及授权书(授权书必须有法定代表人(或负责人)签字,必须注明项目名称及编号,并明确委托权限);
3.遴选文件获取方式:经报名信息初审,星空网页版登录入口将遴选文件电子版(免费)发至符合条件的报名单位的报名邮箱,报名后未收到遴选文件的,应在报名截止前联系我单位,否则视为已经收到。(报名信息初审结果不代表评标当日的资格审查的结果)
八、竞标文件递交截止时间和地点:竞标文件必须以密封形式于2024年10月25日上午9时30分前,在星空网页版登录入口南宁市东宝路1-1号远教大楼801室(如时间地点变化提前一天通知)递交,逾期送达或未按招标文件要求密封将予以拒收。
九、截标时间及地点:于2024年10月25日上午9时30分在星空网页版登录入口南宁市东宝路1-1号远教大楼801室(如时间地点变化提前一天通知)截标,法定代表人或委托代理人参加。
十、遴选时间和地点:
1.2024年10月25日上午9时30分截标后为与竞标人遴选时间,地点:在星空网页版登录入口南宁市东宝路1-1号远教大楼801室(如时间地点变化提前一天通知),参加竞标的法定代表人或委托代理人必须持证件(法定代表人凭资格证书和身份证,委托代理人凭法人授权委托书原件和委托代理人身份证)依时到达指定地点等候当面遴选。
2.特别说明:竞标单位应对本次遴选如遇不可预计因素导致遴选时间及地点的适当变更表示理解,遴选人将以书面方式提前一天通知竞标单位。
十一、凡对本次遴选提出询问,请按以下方式联系:
遴 选 人:星空网页版登录入口
地 址:南宁市青秀区东宝路1-1号
邮 编:530022
联 系 人:陈紫玫
电 话:0771-5705485
电子邮箱:gxddhqc@126.com
全过程咨询单位:广西同泽工程项目管理股份有限公司
地 址:广西南宁凯旋路16号广西裕达集团南宁五象总部基地广东大厦十八层
邮 编:530000
联 系 人:黄艳艳
电 话:0771-4305766
电子邮箱:1279972415@qq.com
十二、监管机构:
遴选人(项目业主)监督机构及联系人:星空网页版登录入口危旧房改住房改造项目监督委员会
联系电话:0771-5851916
十二、网上查询:星空网页版登录入口(http://www.couptown.com)官网。
十三、公告期限:本遴选公告期限为自发布之日起5个工作日。
遴选人(项目业主): 星空网页版登录入口
2024年9月30日